Дома под ключ в Вологде
Отзывы из Яндекс Карт
4.9
92 отзывов
Дополнительные услуги 88%
2 154 оценок
Комплектации 89%
1 535 оценок
Планировки 90%
2 484 оценок
Проекты 93%
2 231 оценок
С
Егор Ш.04/10/2026 г.
Сам немного разбираюсь в строительстве, поэтому придирался ко всему. Но даже на мои придирки реагировали адекватно, спорные моменты объясняли или исправляли.
С
Андрей Поздняков05/03/2025 г.
Постройка деревянного дома — это ответственное мероприятие, но специалисты компании смогли развеять все мои страхи, предложив действительно качественные материалы и блестяще исполнив монтаж, за что я им безмерно благодарен.
Отзывы из Google Карт
4.8
56 отзывов
Дополнительные услуги 88%
2 154 оценок
Комплектации 89%
1 535 оценок
Планировки 90%
2 484 оценок
Проекты 93%
2 231 оценок
С
Ванда Зайцева05/17/2026 г.
Хочу предупредить девушек: если заказываете дом с панорамным остеклением 10х13, готовьтесь к тому, что зимой мыть его изнутри от конденсата. Сами окна поставили отлично, но из-за перепадов температуры немного капает по низу. Компания прислала мастера, он отрегулировал — стало лучше.
С
Мия Хромова02/24/2026 г.
Дом под усадку заказывали, ждали почти год перед отделкой. Нервничала, конечно, но когда начали внутреннюю отделку, поняла почему нельзя было спешить — геометрия нигде не повело. Спасибо, что предупреждали сразу.
С
Лаура Измайлова01/24/2026 г.
Я очень переживала за сроки, потому что старый дом продали, а новый ещё не готов. Заказала каркасник 7х10 с балконом и двумя входами, справились за два месяца как обещали, даже на неделю раньше. Правда в смете потом всплыли допы по фундаменту, но предупре
С
Тарас Смирнов02/16/2025 г.
Обратился в компанию Брус дома с мечтой о собственной бане из профилированного бруса и ни разу не пожалел о выборе. С самого первого звонка со мной работали внимательные специалисты, которые подробно объяснили все нюансы и подобрали оптимальный проект. Строительная бригада работала слаженно и аккуратно, уложились в обещанные сроки, а качество сборки просто превосходное. Теперь у меня на участке красуется настоящая русская баня, пахнущая древесиной и уютом.
Отзывы из 2гис
4.9
40 отзывов
Дополнительные услуги 88%
2 154 оценок
Комплектации 89%
1 535 оценок
Планировки 90%
2 484 оценок
Проекты 93%
2 231 оценок
С
Ада У.03/27/2026 г.
Очень понравилось, что в компании можно заказать дом с уже готовой котельной и разводкой труб. Я не хотела потом мужа с этим дёргать. Взяли проект 6х12 с сауной и бассейном, въехали — и сразу тёплая вода.
С
Мия Короткова08/04/2025 г.
Хочу отметить высочайший уровень исполнения и сервиса. С самого первого звонка чувствовалось, что компания дорожит своей репутацией: помогли выбрать проект бани, подсказали по нюансам фундамента. Бригада работала чисто, убирала за собой, сдала объект даже раньше оговоренного срока.


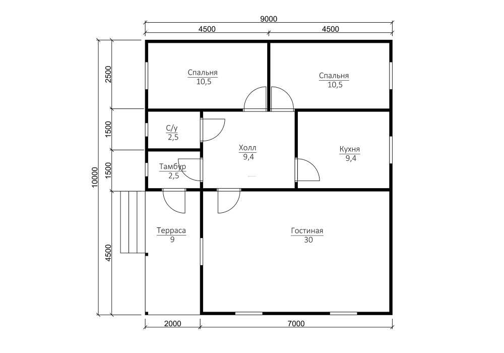
Проект №68 Дом в один этаж 9х10

брус камерной сушки
Под ключ (с отделкой) 9х10 Профилированный 140х140 мм 2410900 Заказать
Под ключ (с отделкой) 9х10 Профилированный 190х140 мм 2700900 Заказать
Под усадку (без отделки) 9х10 Cруб дома 140х140 мм 1740900 Заказать
Под усадку (без отделки) 9х10 Cруб дома 190х140 мм 2070900 Заказать


Комплектация

Площадь застройки: 90 м2
Длина: 10 м
Ширина: 9 м
Общая площадь: 78 м2
Под ключ (с отделкой) Под усадку (без отделки)
Фундамент Свайно-винтовой или ж/б сваи (рассчитываются отдельно).
Гидроизоляция фундамента Рубероид в два слоя.
Основание (обвязка) Из обрезного бруса (100х150 мм. 150х150 мм. 150х200 мм. согласно выбранному сечению бруса). Обработка антисептиком.
Количество рядов основания 2 2
Цокольное перекрытие Обрезной брус камерной сушки 100х150/50х200 мм. с шагом 600 мм. Обработка антисептиком. Обрезной брус естественной влажности 100х150/50х200 мм. с шагом 600 мм. Обработка антисептиком.
Пол черновой Обрезная доска камерной сушки 20х100 мм. Обрезная доска естественной влажности 20х100 мм.
Внешние стены Профилированный брус камерной сушки, сечением 90х140/140х140/190х140 мм. по выбранной комплектации. Два вида профиля: 
1. С двух сторон, прямой со снятой фаской. 2. Снаружи под «блок- хаус», внутри прямой.
Высота сруба: Сруб одноэтажный- 18 венцов
Сруб с мансардой- 18 венцов
Сруб в 1,5 этажа- 18 венцов, далее каркас с внешней отделкой имитацией бруса.
Сруб в 2 этажа- 37 венцов
Профилированный брус естественной влажности, сечением 90х140/140х140/190х140 мм. по выбранной комплектации. Два вида профиля: 
1. С двух сторон, прямой со снятой фаской. 2. Снаружи под «блок- хаус», внутри прямой.
Высота сруба: Сруб одноэтажный- 18 венцов
Сруб с мансардой- 18 венцов
Сруб в 1,5 этажа- 18 венцов, далее каркас с внешней отделкой имитацией бруса.
Сруб в 2 этажа- 37 венцов
Межвенцовый утеплитель Джут (льноджутовое полотно). Джут (льноджутовое полотно).
Перегородки 1-го этажа Профилированный брус камерной сушки, сечением 90х140 мм. Профилированный брус естественной влажности, сечением 90х140 мм.
Перегородки 2-го этажа Каркасные: доска камерной сушки 40х100 мм, обшитые евровагонкой хвойных пород, камерной сушки, толщиной 12,5 мм. сорт «АВ» (дома с мансардой и в 1,5 этажа). Брусовые: профилированный брус камерной сушки, сечением 90х140 мм. (дома двухэтажные). Каркасные: доска естественной влажности 40х100 мм. (дома с мансардой и в 1,5 этажа). Брусовые: профилированный брус естественной влажности, сечением 90х140 мм. (дома двухэтажные).
Сборка сруба Берёзовый нагель. Берёзовый нагель.
Соединение углов сруба «Тёплый угол» (коренной шип). «Тёплый угол» (коренной шип).
Высота от пола до потолка Сруб одноэтажный: 2,4 м. (18 венцов) Сруб с мансардой: 1-ый этаж- 2,4 м. (18 венцов)
2-ой этаж (мансарда)- 2,3 м.
Сруб в полтора и два этажа:
1-ый этаж 2,4 м ±4 см. (18 венцов)
2-ой этаж 2,4 м ±4 см. каркасные аттиковые стены (боковые) высотой 1,5 м. в полутораэтажном доме
2,4 м ±4 см (поднят брусом на 18 венцов) в двухэтажном доме.
Сруб одноэтажный: 2,5 м. (18 венцов) Сруб с мансардой: 1-ый этаж- 2,5 м. (18 венцов)
2-ой этаж (мансарда)- 2,4 м.
Сруб в полтора и два этажа:
1-ый этаж 2,5 м ±4 см. (18 венцов)
2-ой этаж 2,5 м ±4 см. каркасные аттиковые стены (боковые) высотой 1,5 м. в полутораэтажном доме
2,5 м ±4 см (поднят брусом на 18 венцов) в двухэтажном доме.
Утепление (пол, потолок, мансарда) Минеральная вата Knauf 150 мм. Отсутствует.
Пароизоляция (пол, потолок, мансарда) Ондутис R70. Отсутствует.
Пол чистовой Шпунтованная доска камерной сушки толщиной 36 мм. сорт АВ. по рейке 20х40 мм. либо шпунтованная ДСП 16 мм. по разряженной обрешётке из обрезной доски камерной сушки 20х100 мм. Отсутствует.
Потолки Евровагонка камерной сушки толщиной 12,5 мм. сорт АВ. Отсутствует.
Окна Деревянные, двойного остекления. Отсутствуют.
Двери Входная- металлическая, утеплённая (Россия). Межкомнатные- филёнчатые. Отсутствуют.
Наличники на окна и двери Наличник деревянный, строганый, камерной сушки 70-90 мм. Отсутствует.
Шиповка оконных и дверных проёмов (ройки) Да. Отсутствует.
Лестница (при наличии второго этажа) Деревянная, одно или двухмаршевая. Перила- заводские резные, балясины- заводские точеные, устанавливаются стартовые точёные столбы. Ступени 40х200 мм. Тетива лестницы- 90х140 мм. Отсутствует.
Крыша Двускатная, ломаная или вальмовая в соответствии с проектом. Двускатная, ломаная или вальмовая в соответствии с проектом.
Стропильная система Выполнена из обрезной доски камерной сушки 40х150 мм. Шаг установки стропильных ног 600 мм. Выполнена из обрезной доски естественной влажности 40х150 мм. Шаг установки стропильных ног 600 мм.
Обрешётка Выполняется из обрезной доски камерной сушки толщиной 20-22 мм. Шаг крепления обрешетки 300 мм. Контробрешётка выполняется из бруска камерной сушки 40х50 мм. Крепится по стропильным ногам (вентиляционный зазор). Выполняется из обрезной доски естественной влажности толщиной 20-22 мм. Шаг крепления обрешетки 300 мм. Контробрешётка выполняется из бруска естественной влажности 40х50 мм. Крепится по стропильным ногам (вентиляционный зазор).
Подкровельная мембрана Ондутис А100 Ондутис А100
Кровельное покрытие (на выбор) Ондулин, Черепица Ондулин. Ондулин, Черепица Ондулин.
Фронтоны (при наличии) Каркас из обрезной доски камерной сушки 40х150 мм. Обшиваются вагонкой камерной сушки толщиной 16 мм. сорт АВ по контррейке 20х40 мм. (вентиляционный зазор). Влаго-ветрозащита Ондутис А100. Монтаж вентиляционных решёток. Каркас из обрезной доски естественной влажности 40х150 мм. Обшиваются вагонкой камерной сушки толщиной 16 мм. сорт АВ по контррейке 20х40 мм. (вентиляционный зазор). Влаго-ветрозащита Ондутис А100. Монтаж вентиляционных решёток.
Свесы крыши Ширина 400 мм. Подшиваются вагонкой камерной сушки, сорт АВ. Ширина 400 мм. Подшиваются вагонкой камерной сушки, сорт АВ.
Терраса/балкон (при наличии) Устанавливаются опорные столбы из строганного бруса камерной сушки 140х140 мм. с компенсационными болтами под усадку. Устанавливаются опорные столбы из строганного бруса естественной влажности 140х140 мм. с компенсационными болтами под усадку.
Отделка потолка террасы/балкона Евровагонка камерной сушки толщиной 12,5 мм. сорт АВ. Отсутствует.
Пол террасы/балкона Шпунтованная доска камерной сушки толщиной 36 мм. сорт АВ. Отсутствует.
Ограждение террасы/балкона Перила- строганая доска. Балясины- точеные, фигурные. Либо ограждение в скандинавском стиле. Устанавливаются ступени у входа. Отсутствует.
Допуск на геометрические параметры сруба Составляет +/- 50 мм по длине с каждой стороны. Составляет +/- 50 мм по длине с каждой стороны.
Допускается стыковка бруса, вагонки и половой доски По всему периметру стен дома (если ширина и длина дома более 6,0 метров). Вагонки и доски пола в каждой отдельной комнате. По всему периметру стен дома (если ширина и длина дома более 6,0 метров).
Допуски по брусу, доске +/- 5 мм. +/- 5 мм.
В стоимость включена Доставка комплекта материала в радиусе 500 км. от г. Пестова Новгородской области и сборка дома на вашем участке. Доставка комплекта материала в радиусе 500 км. от г. Пестова Новгородской области и сборка дома на вашем участке.
Гарантия 5 лет. 2 года.
Бытовка строительная 2,0х3,0 м. каркасно-щитовая. Стоимость 23000 руб. Остаётся на участке Заказчика. Стоимость 23000 руб. Остаётся на участке Заказчика.
Туалет 1,0х1,0 м. каркасно-щитовой. Стоимость 12000 руб. Остаётся на участке Заказчика. Стоимость 12000 руб. Остаётся на участке Заказчика.
Генератор Стоимость аренды на весь срок строительства 10000 руб. ГСМ за счёт Заказчика. Стоимость аренды на весь срок строительства 10000 руб. ГСМ за счёт Заказчика.

Постройка деревянных домов производится в нескольких видах: сразу под ключ и под усадку, когда дом отстаивается на протяжении некоторого времени.

В холодное время года надежнее строить из зимнего леса, летом - из бруса камерной сушки.

Наиболее подходящими для дачи или сада стали малобюджетные домики на винтовых сваях, на нашем сайте вы увидите одноэтажные и полуторатажные дома.

В случае если вы планируете жить постоянно, предлагаем надежные и теплые коттеджи и дома на ленточных и плитных фундаментах.

Имеется 2 размера профилированного бруса: 190х140 мм и 140х140 мм. Постройки из вертикального бруса строим с применением бруса 140х190 мм.

Дополнительные услуги


одноэтажный дом с , представленный в проекте 68 компанией «Дачи из бруса», – это сочетание превосходной функциональности и ценовой доступности, предопределивших популярность коттеджа среди владельцев загородных участков и организаторов туристических баз.

Сооружение, занимающее площадь 78 кв.м., имеет ряд преимуществ, по достоинству оцененных владельцами:

  • простота монтажа, работ по укладке фундамента и отсутствие необходимости в отделочных работах;
  • высокая прочность и экологичность бруса, произведенного на собственном предприятии фирмы «Дачи из бруса»;
  • тщательно рассчитанная планировка внутренних помещений;
  • выносливость и долговечность, проверенные активной эксплуатацией строений в климатической зоне .

Планировка помещений рациональна и оправдана, что гарантирует удобное расположение небольшой семьи или компании путешественников. Сооружение размером 9х10 м. имеет надежную двускатную крышу, цвет которой владелец может выбрать самостоятельно. Кроме того, компания охотно внесет изменения в первоначальный проект для придания коттеджу особого стиля и дополнительного комфорта.


Заказать или задать вопрос



Заказать или задать вопрос

Заказать звонок