Дома под ключ в Вологде
Отзывы из Яндекс Карт
4.9
113 отзывов
Дополнительные услуги 88%
2 154 оценок
Комплектации 89%
1 535 оценок
Планировки 90%
2 484 оценок
Проекты 93%
2 231 оценок
С
Василиса01/19/2025 г.
Мой каркасный дом оказался очень тёплым и тихим, несмотря на близость к лесу, и я уверена, что это заслуга качественных материалов и точного соблюдения всех технологических норм при сборке конструкции.
Отзывы из Google Карт
4.8
68 отзывов
Дополнительные услуги 88%
2 154 оценок
Комплектации 89%
1 535 оценок
Планировки 90%
2 484 оценок
Проекты 93%
2 231 оценок
С
Александр Спиридонов08/12/2025 г.
Мне нужна была баня, и я хотел построить ее без лишних хлопот. Обратился в Брус дома, и они взяли на себя все заботы. Подобрали проект, согласовали, привезли материал и собрали как конструктор. Получилась красивая и функциональная баня, в которой теперь паримся с друзьями каждую неделю. Спасибо за отличную работу и исполнение мечты.
Отзывы из 2гис
4.9
40 отзывов
Дополнительные услуги 88%
2 154 оценок
Комплектации 89%
1 535 оценок
Планировки 90%
2 484 оценок
Проекты 93%
2 231 оценок
С
Вениамин Коровин04/14/2025 г.
Спасибо за профессиональный подход и умение слушать клиента, ведь в итоге я получил именно тот дом, который и хотел.


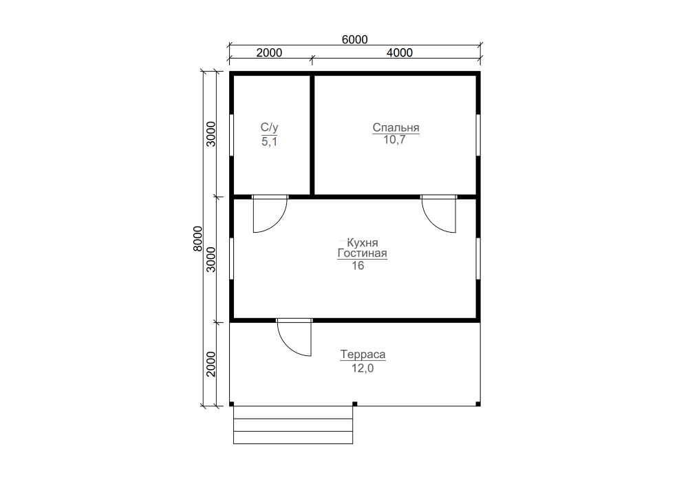
Проект №84 Каркасный дом 6х8

каркас из строганой доски
Каркасный дом (150 мм) 6х8 Толщина утепления 150 мм 1330900 Заказать
Каркасный дом (200 мм) 6х8 Толщина утепления 200 мм 1450900 Заказать

Для того, чтобы получить личную планировку, пользуйтесь планировщиком.

С помощью планировщика можно сделать схемы, эскизы, чертежи, планы дома с эркером, мансардой, с требуемым количеством комнат. Вы сможете получить проект с отличной планировкой, стопроцентно отвечающий вашим потребностям.

Вы сможете подобрать вид кровли. Крышу можно сделать двускатной, четырехскатной и вальмовой. Двухскатная крыша - наиболее популярна у малометражных построек.

Самые популярные размеры на сегодняшний день: мини - до 50 квадратных метров (чаще всего, одноэтажные дома); компактные - от 70 до 100м2 (обычно 2-этажные); большие - начиная от 150 м2 и больше.

Строим дуплексы - каркасные постройки с 2-мя входами на 2 семьи. Подобные дома предполагаются для двух хозяев и поделены на две половины, для обоих половин - отдельный вход.


Наши работы

Перейти в галерею


Комплектация

Площадь застройки: 48 м2
Длина: 8 м
Ширина: 6 м
Общая площадь: 32.8 м2
Исполнение Под ключ (с отделкой)
Фундамент Свайно-винтовой или ж/б сваи (рассчитываются отдельно).
Гидроизоляция фундамента Рубероид в два слоя.
Основание (обвязка) Из обрезного бруса 150х150 мм. 150х200 мм. согласно выбранной толщине утепления. Торцевая доска строганая 45х145/45х195+/-5 мм. согласно выбранной толщине утепления. Обработка антисептиком.
Цокольное перекрытие Строганая доска камерной сушки 45х145/45х195+/-5 мм. с шагом 590 мм. Обработка антисептиком.
Пол черновой Обрезная доска камерной сушки 20х100 мм.
Влаго-ветрозащита чернового пола Мембрана Ондутис А100.
Внешние стены Стойки каркаса из строганой доски камерной сушки 45х145/45х195+/-5 мм. с шагом 590 мм. Верхняя двойная и нижняя обвязки из строганой доски камерной сушки 45х145/45х195+/-5 мм. Разгрузочный ригель из строганой доски 45х145+/-5 мм. Укосины из строганой доски 20х95 мм.
Перегородки Стойки каркаса из строганой доски камерной сушки 45х95+/-5 мм. с шагом 590 мм. Верхняя двойная и нижняя обвязки из строганой доски 45х95+/-5 мм. Разгрузочный ригель из строганой доски камерной сушки 45х145+/-5 мм. Укосины из строганой доски камерной сушки 20х95 мм.
Сборка каркаса На гвозди.
Высота от пола до потолка Дом одноэтажный: 2,5 м. Дом с мансардой: 1-ый этаж- 2,5 м.
2-ой этаж (мансарда)- 2,3 м.
Дом в полтора и два этажа:
1-ый этаж 2,5 м.
2-ой этаж 2,4 м. в полутораэтажном доме
2,5 м. в двухэтажном доме.
Внешняя отделка стен Имитация бруса камерной сушки, сорт АВ, толщиной 17 мм. Монтаж через строганый брусок камерной сушки 45х45+/-5 мм. (вентилируемый фасад). Влаго-ветрозащитная мембрана- Ондутис А100.
Внутренняя отделка стен, перегородок Евровагонка камерной сушки, сорт АВ, толщиной 12,5 мм. по строганой рейке 20х40+/-5 мм. либо ГКЛ 12,5 мм.
Отделка потолка Евровагонка камерной сушки, сорт АВ толщиной, 12,5 мм. по строганой рейке 20х40+/-5 мм. либо ГКЛ 12,5 мм.
Пол чистовой Шпунтованная доска камерной сушки толщиной 35-36 мм. сорт АВ. по строганой рейке 20х40+/-5 мм. либо шпунтованная ДСП 16 мм. по разряженной обрешётке из строганой доски камерной сушки 20х95+/-5 мм.
Утепление (пол, потолок) Минеральная вата Knauf 150/200 мм. согласно выбранной толщине утепления.
Утепление стен Плитный утеплитель Rockwool, толщиной 150/200 мм. согласно выбранной толщине утепления.
Звукоизоляция перегородок Плитный утеплитель Rockwool, толщиной 100 мм.
Пароизоляция (стены, перегородки, пол, потолок) Плёнка Ондутис R70. Дополнительная герметизация нахлёстов/примыканий пароизоляционной плёнки клейкой лентой Delta.
Окна Двухкамерные стеклопакеты ПВХ белого цвета, профиль 60 мм. В комплекте: отливы, подоконники, москитные сетки.
Двери Входная- металлическая, утеплённая (Россия). Межкомнатные- филёнчатые.
Наличники на окна и двери Наличник деревянный, строганый, камерной сушки 70-90 мм. с двух сторон.
Лестница (при наличии второго этажа) Деревянная, одно или двухмаршевая. Перила- заводские резные, балясины- заводские точеные, устанавливаются стартовые точёные столбы. Ступени 40х200 мм. Тетива лестницы- 90х140 мм.
Крыша Двускатная, ломаная или вальмовая в соответствии с проектом.
Стропильная система Выполнена из строганой доски камерной сушки 45х145/45х195+/-5 мм. Шаг установки стропил 590 мм.
Обрешётка Выполняется из строганой доски камерной сушки толщиной 20х95+/-5 мм. Шаг крепления обрешетки 350 мм. Контробрешётка выполняется из строганого бруска камерной сушки 45х45+/-5 мм. Крепится по стропилам (вентиляционный зазор).
Подкровельная мембрана Ондутис А100
Кровельное покрытие (на выбор) Металлочерепица 0,45 мм. Цвет на выбор.
Фронтоны (при наличии) Каркас из строганой доски камерной сушки 45х145/45х195+/-5 мм. Обшиваются имитацией бруса камерной сушки, сорт АВ, толщиной 17 мм. Монтаж через строганый брусок камерной сушки 45х45+/-5 мм. (вентилируемый фасад). Влаго-ветрозащитная мембрана- Ондутис А100. Монтаж вентиляционных решёток.
Свесы крыши Ширина 400 мм. Подшиваются вагонкой камерной сушки, сорт АВ.
Терраса/балкон (при наличии) Устанавливаются опорные столбы из строганного бруса камерной сушки 140х140 мм.
Отделка потолка террасы/балкона Евровагонка камерной сушки толщиной 12,5 мм. сорт АВ.
Пол террасы/балкона Шпунтованная доска камерной сушки толщиной 35-36 мм. сорт АВ.
Ограждение террасы/балкона Перила- строганая доска. Балясины- точеные, фигурные. Либо ограждение в скандинавском стиле. Устанавливаются ступени у входа.
Допуск на геометрические параметры Составляет +/- 50 мм по длине с каждой стороны.
Допускается стыковка имитации бруса, вагонки и половой доски По всему периметру стен дома (если ширина и длина дома более 6,0 метров). Вагонки и доски пола в каждой отдельной комнате.
Допуски по имитации бруса, вагонке, доске +/- 5 мм.
В стоимость включена Доставка комплекта материала в радиусе 500 км. от г. Пестова Новгородской области и сборка дома на вашем участке.
Гарантия 5 лет.
Бытовка строительная 2,0х3,0 м. каркасно-щитовая. Стоимость 23000 руб. Остаётся на участке Заказчика.
Туалет 1,0х1,0 м. каркасно-щитовой. Стоимость 12000 руб. Остаётся на участке Заказчика.
Генератор Стоимость аренды на весь срок строительства 15000 руб. ГСМ за счёт Заказчика.

Сооружение дома может выполняться в нескольких видах: под усадку, когда сруб отстаивается определенное время и под ключ.

В холодное время года эффективнее строить дом в холодную погоду, чтобы каркас не успел промокнуть, в летний сезон - не под дождем.

Максимально подходящими для сада или дачи считаются малобюджетные дома на винтовых сваях, на нашем сайте имеются одноэтажные и полуторатажные варианты домов.

В случае если вы планируете проживать постоянно, советуем надежные и теплые двухэтажные и одноэтажные коттеджи и дома на плитном и ленточном фундаменте.

Существует 2 размера утепления: 200 мм и 150 мм. Каркасные дома с толщиной стен 200 миллиметров получаются теплее, но несколько дороже.

Дополнительные услуги


Комфортный одноэтажный дом, реализованный по проекту 84, может не только использоваться в качестве дачи, но и прекрасно подойдет для постоянного проживания. Каркасный дом с большой террасой отличается эффектным, но сдержанным экстерьером и светлыми помещениями.

Общая площадь здания составляет 32.8 кв.м., размер дома – 6х8 м.. В доме установлены межкомнатные филенчатые двери (08,x2 м.), которые не только эффектно выглядят внешне, но и отличаются небольшим весом и долговечностью.

Дом имеет двускатную крышу с ондулиновым покрытием зеленого, коричневого или красного цвета – в зависимости от желания заказчика. Двойные зимние окна обеспечат освещение и циркуляцию воздуха, создадут комфортную атмосферу и микроклимат в доме. Высота потолков первого этажа составляет 2,45 м.

Переезд в комфортный загородный дом станет реальностью в короткие сроки – достаточно оставить заявку на строительство или позвонить специалисту компании «Дача из бруса». Предоставляем полный цикл строительства в Вологде.


Популярные проекты


Дома из бруса 8х9 Каркасные дома 6х5 Одноэтажные бани из бруса
хит продаж
Тип:
Общая площадь: 2
1901400
от 1810900
хит продаж
Тип: с маленькой террасой
Общая площадь: 2
3486900
от 3320900
хит продаж
Тип:
Общая площадь: 2
1628400
от 1550900
Дома из бруса

Заказать или задать вопрос



Заказать или задать вопрос

Заказать звонок