Дома под ключ в Вологде
Отзывы из Яндекс Карт
4.9
104 отзывов
Дополнительные услуги 88%
2 154 оценок
Комплектации 89%
1 535 оценок
Планировки 90%
2 484 оценок
Проекты 93%
2 231 оценок
С
Даниэла Дёмина04/27/2026 г.
В прошлом году муж настоял на бане 5,5х5,5 с бассейном — я была против, думала дорого. БрусДома сделали скидку на материалы, в итоге уложились в бюджет. Сейчас это любимое место всей семьи, вода хорошо греется.
С
Зиновий С.01/26/2026 г.
Заказал каркасник 6х9 с панорамным остеклением для дачи, бюджетный вариант. Утеплитель заложили 150 мм, зиму не проверял, но весной конденсата на окнах почти не было. Из косяков: забыли установить подоконники в спальне, пришлось самому ставить.
С
Валентин Анисимов03/19/2025 г.
Построили баню из профилированного бруса, и теперь это моё любимое место для отдыха — всё продумано до мелочей, от вентиляции до утепления пола. Очень грамотный подход.
Отзывы из Google Карт
4.8
63 отзывов
Дополнительные услуги 88%
2 154 оценок
Комплектации 89%
1 535 оценок
Планировки 90%
2 484 оценок
Проекты 93%
2 231 оценок
С
Рената С.08/04/2025 г.
Огромное спасибо бригаде строителей за их мастерство и аккуратность! После них на участке не пришлось делать дополнительную уборку — всё было чисто и сложено в одном месте. Сам дом из бруса собран просто идеально, словно конструктор без единого изъяна. Очень довольна и уже советую вас всем соседям!
Отзывы из 2гис
4.9
40 отзывов
Дополнительные услуги 88%
2 154 оценок
Комплектации 89%
1 535 оценок
Планировки 90%
2 484 оценок
Проекты 93%
2 231 оценок
С
Владислав Григорьев05/17/2026 г.
Мне их посоветовал товарищ, у него дом 6,5х6,5 с сауной внутри. Заехал посмотрел — брус сухой, без синевы, замки подогнаны плотно. Сам заказал 5х7 с двумя входами. Пока только фундамент залили, но процесс нравится.
С
Валя Назаров03/10/2026 г.
Печь-камин для дома 6х8 заказал у них же, при сборке облицовочного кирпича пожлобили раствор. Заметил, когда печь уже топилась. Вызвал мастеров, исправили, дыма нет. В следующий раз буду сам контролировать каждый этап.
С
Вениамин Ларин02/07/2026 г.
Взял каркасный дом 7х7 с санузлом и котельной под ключ. Бригадир Михаил постоянно отчитывался по ватсапу, присылал фото. Из косяков — розетки поставили не там, где планировали, пришлось штробить стены самим.
С
Алла Мальцева04/23/2025 г.
Бригада работала на совесть — видно было, что ребята опытные и с душой подходят к делу, они даже подсказали нам несколько интересных дизайнерских решений, которые мы сами не рассматривали, а теперь они стали изюминкой нашего интерьера.


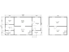
Проект №10 Баня 12х6

брус камерной сушки
Под ключ (с отделкой) 12х6 Профилированный 140х140 мм 2560900 Заказать
Под ключ (с отделкой) 12х6 Профилированный 190х140 мм 2950900 Заказать
Под усадку (без отделки) 12х6 Cруб дома 140х140 мм 1870900 Заказать
Под усадку (без отделки) 12х6 Cруб дома 190х140 мм 2230900 Заказать


Комплектация

Площадь застройки: 72 м2
Длина: 12 м
Ширина: 6 м
Общая площадь: 101 м2
Под ключ (с отделкой) Под усадку (без отделки)
Фундамент Свайно-винтовой или ж/б сваи (рассчитываются отдельно).
Гидроизоляция фундамента Рубероид в два слоя.
Основание (обвязка) Из обрезного бруса (100х150 мм. 150х150 мм. 150х200 мм. согласно выбранному сечению бруса). Обработка антисептиком.
Количество рядов основания 2 2
Цокольное перекрытие Обрезной брус камерной сушки 100х150/50х200 мм. с шагом 600 мм. Обработка антисептиком. Обрезной брус естественной влажности 100х150/50х200 мм. с шагом 600 мм. Обработка антисептиком.
Пол черновой Обрезная доска камерной сушки 20х100 мм. Обрезная доска естественной влажности 20х100 мм.
Внешние стены Профилированный брус камерной сушки, сечением 90х140/140х140/190х140 мм. по выбранной комплектации. Два вида профиля: 
1. С двух сторон, прямой со снятой фаской. 2. Снаружи под «блок- хаус», внутри прямой.
Высота сруба: Сруб одноэтажный- 17 венцов
Сруб с мансардой- 17 венцов
Сруб в 1,5 этажа- 17 венцов, далее каркас с внешней отделкой имитацией бруса.
Сруб в 2 этажа- 35 венцов
Профилированный брус естественной влажности, сечением 90х140/140х140/190х140 мм. по выбранной комплектации. Два вида профиля: 
1. С двух сторон, прямой со снятой фаской. 2. Снаружи под «блок- хаус», внутри прямой.
Высота сруба: Сруб одноэтажный- 17 венцов
Сруб с мансардой- 17 венцов
Сруб в 1,5 этажа- 17 венцов, далее каркас с внешней отделкой имитацией бруса.
Сруб в 2 этажа- 35 венцов
Межвенцовый утеплитель Джут (льноджутовое полотно). Джут (льноджутовое полотно).
Перегородки 1-го этажа Профилированный брус камерной сушки, сечением 90х140 мм. Профилированный брус естественной влажности, сечением 90х140 мм.
Перегородки 2-го этажа Каркасные: доска камерной сушки 40х100 мм, обшитые евровагонкой хвойных пород, камерной сушки, толщиной 12,5 мм. сорт «АВ» (бани с мансардой и в 1,5 этажа). Брусовые: профилированный брус камерной сушки, сечением 90х140 мм. (бани двухэтажные). Каркасные: доска естественной влажности 40х100 мм. (бани с мансардой и в 1,5 этажа). Брусовые: профилированный брус естественной влажности, сечением 90х140 мм. (бани двухэтажные).
Сборка сруба Берёзовый нагель. Берёзовый нагель.
Соединение углов сруба «Тёплый угол» (коренной шип). «Тёплый угол» (коренной шип).
Высота от пола до потолка Сруб одноэтажный: 2,25 м. (17 венцов) Сруб с мансардой: 1-ый этаж- 2,25 м. (17 венцов)
2-ой этаж (мансарда)- 2,3 м.
Сруб в полтора и два этажа:
1-ый этаж 2,25 м. (17 венцов)
2-ой этаж 2,3 м. каркасные аттиковые стены (боковые) высотой 1,5 м. в полутораэтажной бане.
2,25 м. (поднят брусом на 17 венцов) в двухэтажной бане.
Сруб одноэтажный: 2,30 м. (17 венцов) Сруб с мансардой: 1-ый этаж- 2,3 м. (17 венцов)
2-ой этаж (мансарда)- 2,3 м.
Сруб в полтора и два этажа:
1-ый этаж 2,3 м. (17 венцов)
2-ой этаж 2,3 м. каркасные аттиковые стены (боковые) высотой 1,5 м. в полутораэтажной бане.
2,3 м. (поднят брусом на 17 венцов) в двухэтажной бане.
Утепление (пол, потолок, мансарда) Минеральная вата Knauf 150 мм. Отсутствует.
Пароизоляция (пол, потолок, мансарда) Ондутис R70. Отсутствует.
Пол чистовой Шпунтованная доска камерной сушки толщиной 36 мм. сорт АВ. по рейке 20х40 мм. либо шпунтованная ДСП 16 мм. по разряженной обрешётке из обрезной доски камерной сушки 20х100 мм. Отсутствует.
Потолки Евровагонка камерной сушки толщиной 12,5 мм. сорт АВ. Отсутствует.
Окна Деревянные, двойного остекления. Отсутствуют.
Двери Входная- металлическая, утеплённая (Россия). Межкомнатные- филёнчатые. В парную- клиновая (банная). Отсутствуют.
Наличники на окна и двери Наличник деревянный, строганый, камерной сушки 70-90 мм. Отсутствует.
Шиповка оконных и дверных проёмов (ройки) Да. Отсутствует.
Лестница (при наличии второго этажа) Деревянная, одно или двухмаршевая. Перила- заводские резные, балясины- заводские точеные, устанавливаются стартовые точёные столбы. Ступени 40х200 мм. Тетива лестницы- 90х140 мм. Отсутствует.
Крыша Двускатная, ломаная или вальмовая в соответствии с проектом. Двускатная, ломаная или вальмовая в соответствии с проектом.
Стропильная система Выполнена из обрезной доски камерной сушки 40х150 мм. Шаг установки стропильных ног 600 мм. Выполнена из обрезной доски естественной влажности 40х150 мм. Шаг установки стропильных ног 600 мм.
Обрешётка Выполняется из обрезной доски камерной сушки толщиной 20-22 мм. Шаг крепления обрешетки 300 мм. Контробрешётка выполняется из бруска камерной сушки 40х50 мм. Крепится по стропильным ногам (вентиляционный зазор). Выполняется из обрезной доски естественной влажности толщиной 20-22 мм. Шаг крепления обрешетки 300 мм. Контробрешётка выполняется из бруска естественной влажности 40х50 мм. Крепится по стропильным ногам (вентиляционный зазор).
Подкровельная мембрана Ондутис А100 Ондутис А100
Кровельное покрытие (на выбор) Ондулин, Черепица Ондулин. Ондулин, Черепица Ондулин.
Фронтоны (при наличии) Каркас из обрезной доски камерной сушки 40х150 мм. Обшиваются вагонкой камерной сушки толщиной 16 мм. сорт АВ по контррейке 20х40 мм. (вентиляционный зазор). Влаго-ветрозащита Ондутис А100. Монтаж вентиляционных решёток. Каркас из обрезной доски естественной влажности 40х150 мм. Обшиваются вагонкой камерной сушки толщиной 16 мм. сорт АВ по контррейке 20х40 мм. (вентиляционный зазор). Влаго-ветрозащита Ондутис А100. Монтаж вентиляционных решёток.
Свесы крыши Ширина 400 мм. Подшиваются вагонкой камерной сушки, сорт АВ. Ширина 400 мм. Подшиваются вагонкой камерной сушки, сорт АВ.
Терраса/балкон (при наличии) Устанавливаются опорные столбы из строганного бруса камерной сушки 140х140 мм. с компенсационными болтами под усадку. Устанавливаются опорные столбы из строганного бруса естественной влажности 140х140 мм. с компенсационными болтами под усадку.
Отделка потолка террасы/балкона Евровагонка камерной сушки толщиной 12,5 мм. сорт АВ. Отсутствует.
Пол террасы/балкона Шпунтованная доска камерной сушки толщиной 36 мм. сорт АВ. Отсутствует.
Ограждение террасы/балкона Перила- строганая доска. Балясины- точеные, фигурные. Либо ограждение в скандинавском стиле. Устанавливаются ступени у входа. Отсутствует.
Отделка парной Отделка осиновой вагонкой камерной сушки, сорт АВ по фольге, через контррейку 20х40 мм. (вентиляционный зазор). Установка пологов из осины. Отсутствует.
Допуск на геометрические параметры сруба Составляет +/- 50 мм по длине с каждой стороны. Составляет +/- 50 мм по длине с каждой стороны.
Допускается стыковка бруса, вагонки и половой доски По всему периметру стен бани (если ширина и длина бани более 6,0 метров). Вагонки и доски пола в каждой отдельной комнате. По всему периметру стен бани (если ширина и длина бани более 6,0 метров).
Допуски по брусу, доске +/- 5 мм. +/- 5 мм.
В стоимость включена Доставка комплекта материала в радиусе 500 км. от г. Пестова Новгородской области и сборка дома на вашем участке. Доставка комплекта материала в радиусе 500 км. от г. Пестова Новгородской области и сборка дома на вашем участке.
Гарантия 5 лет. 2 года.
Печь По запросу Не предусмотрена.
Бытовка строительная 2,0х3,0 м. каркасно-щитовая. Стоимость 23000 руб. Остаётся на участке Заказчика. Стоимость 23000 руб. Остаётся на участке Заказчика.
Туалет 1,0х1,0 м. каркасно-щитовой. Стоимость 12000 руб. Остаётся на участке Заказчика. Стоимость 12000 руб. Остаётся на участке Заказчика.
Генератор Стоимость аренды на весь срок строительства 10000 руб. ГСМ за счёт Заказчика. Стоимость аренды на весь срок строительства 10000 руб. ГСМ за счёт Заказчика.

Сооружение деревянных бань выполняется в 2-х вариантах: под усадку, когда сруб будет отстаиваться на протяжении некоторого времени и полностью под ключ.

Зимой специалисты советуют строить бани из зимнего леса, летом - из дерева камерной сушки.

Оптимальными для дачи или сада являются экономичные бани на винтовых сваях, на нашем сайте вы увидите одноэтажные и полуторатажные бани.

Имеется несколько видов профбруса: 140х140 мм и 190х140 мм. Постройки из вертикального бруса строятся с использованием бруса 140х190 мм.

Дополнительные услуги


Эстетичность и функциональность — важные составляющие банных сооружений, которым, несомненно, соответствует проект бани с верандой 10 от компании «Дача из бруса».

двухэтажная баня площадью 101 кв.м. имеет привлекательный внешний вид, способный преобразить собой приусадебный участок загородного дома. Расположенные в соответствии со строгими требованиями к подобным сооружениям внутренние помещения гарантируют идеальный отдых владельцу и его гостям.

К достоинствам, признанным владельцами, относятся:

  • прочность и долговечность, неоднократно проверенные в климатических условиях ;
  • компактность и легковесность строения;
  • исключительное качество исходных материалов;
  • экологичность и комфортность бани;
  • самая демократичная цена, предоставленная непосредственным производителем – компанией «Дача из бруса».

Продуманная планировка и тщательный подбор используемых в строительстве материалов позволяют обеспечить оптимальный температурный режим в парилке. Баня 12х6 м. укрыта двускатной крышей с ондулином выбранной расцветки.

Компания организует многочисленные акции и предоставляет сезонные скидки на широкий ассортимент продукции для заказчиков .


Заказать или задать вопрос



Заказать или задать вопрос

Заказать звонок